Voorbeeld projecten splitsingstekeningen

Onderstaand worden een aantal voorbeelden getoond van splitsingstekeningen welke eerder door iTX BouwConsult zijn gemaakt.

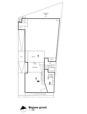
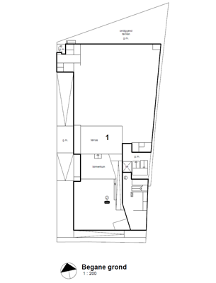
Holland Park Diemen

Blok 5 - Begane grond onderspl commercieel.jpg

Kenmerkend voor Holland Park is de diversiteit aan woningen met verschillende architectuurstijlen, gelegen aan water en groen. Het project bestaat uit gesloten bouwblokken met een hoge dichtheid. iTX BouwConsult heeft in opdracht van Snippe Projecten voor meerdere woonblokken in Holland Park de splitsingstekeningen vervaardigd. Voor woonblok 5 is een splitsingstekening gemaakt met een zogenaamde hoofd- en ondersplitsing. Het betreft hier een gebouw met een woonfunctie en een divers palet aan commerciële functies.

Het is verstandig om bij gebouwen met uiteenlopende functies te kiezen voor een hoofd- en ondersplitsing. Zonder de hoofd- en ondersplitsing hebben alle eigenaren een gelijke stem in de vergadering. De bewoners van de appartementen hebben vaak andere belangen dan bijvoorbeeld de zakelijke gebruikers in het pand. Dat kan de voortvarendheid binnen de vergadering van de vereniging van eigenaren (v.v.e.) frustreren.

Door te kiezen voor een hoofd- en ondersplitsing worden de hoofdfuncties, dus wonen en commercie, eerst ondergebracht in afzonderlijke appartementsrechten. Per sub onderdeel worden de gebouwen verder op een normale manier gesplitst. Boven de qua functie gescheiden vereniging van eigenaren komt nu een overkoepelende vereniging van eigenaren waarin slechts een beperkte vertegenwoordiging van elke van de functies aanwezig is. Dit alles komt de bestuurbaarheid van het gehele gebouwcomplex ten goede.

Terug naar uitleg splitsingstekeningen
Vraag offerte aan

Splitsing Romanov Zaandam

Splitsingstekeningen Romanov - 1e Verdieping - Onderspl- Woningen.jpg

Midden in het spraakmakende stadshart van Zaandam komt het woongebouw Romanov. Een eyecatcher waarvan de opvallende architectuur is geïnspireerd op de typische Zaanse huisjes. Splitsingstekeningen moet voldoen aan de eisen van het kadaster, de splitsingstekeningen moeten eenduidig vastleggen aan wie welk gebouwdeel toebehoort. Maar ook moet eenduidig zijn vastgelegd welke delen van het gebouw gemeenschappelijk zijn. Een splitsingstekening tezamen met de splitsingsakte geeft exact de grenzen weer tussen enerzijds het, in het hier getoonde voorbeeld van Romanov in Zaandam, privé-eigendom van de woningen en commercie en het gemeenschappelijk bezit. Op de splitsingstekening wordt gewerkt met dikke lijnen, alles daarbinnen behoort tot één eigenaar en dat wat daar buiten valt is gemeenschappelijk bezit. Met de dikke lijn wordt het appartementsrecht aangegeven. Elk appartementsrecht krijgt altijd een uniek nummer, dat start bij 1 en moet ononderbroken doorlopen over alle appartementsrechten.

Terug naar uitleg splitsingstekeningen
Vraag offerte aan

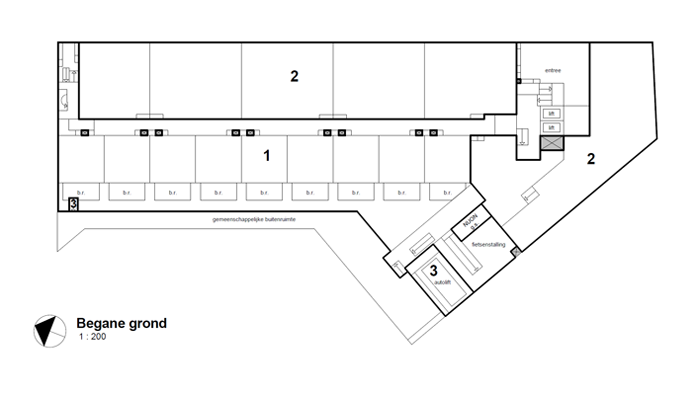
Splitsing Purmerend Kop West

splitsing begane grond.jpg

In het plangebied Kop West, gelegen tussen de Neckerstraat, Kanaaldijk en de Wolgalaan, worden meerdere projecten ontwikkeld. In opdracht van HSB Ontwikkeling in Volendam is door iTX BouwConsult voor een woongebouw in dit plangebied een enkele splitsing met een breukdelenoverzicht doorgevoerd. Het breukdelenoverzicht is onderdeel van de splitsingsakte. Het breukdelenoverzicht geeft aan welk deel ieder appartement uitmaakt van het geheel. Het breukdelenoverzicht geeft ook aan wat het aantal stemmen is dat de appartementseigenaar heeft in de vergadering van de vereniging van eigenaren. Dit is geen vaststaand gegeven. Er kan gekozen worden om de hoeveelheid stemmen afhankelijk te maken van de grootte van het appartement, maar er kan ook voor gekozen worden om iedere appartemensgerechtigde 1 stem in de vereniging van eigenaren te geven. Een en ander is sterk afhankelijk van de complexiteit van het gebouw en de aan- of afwezigheid van meerdere functies.

Met het breukdelen overzicht is per appartementsgerechtigde ook eenvoudig vast te stellen wat het aandeel in de gezamenlijk kosten zijn.

Terug naar uitleg splitsingstekeningen
Vraag offerte aan

Klaasje Zevenster Amstelveen

2019-11-06_14h51_04.png

Tussen de Oranjebaan en de Klaasje Zevensterstraat komen meerdere appartementengebouwen met een uniforme, moderne uitstraling. Een ontwikkeling van de combinatie BDP en de Nijs. De gebouwen bieden een parkachtig binnenterrein en liggen in het groen. De splitsingstekeningen zijn vervaardigd door iTX BouwConsult.

Terug naar uitleg splitsingstekeningen
Vraag offerte aan

Appartementengebouw Jans aan de Singel Arnhem

2019-11-06_14h22_26.png

Het Arnhemse bedrijf Kuiper Bouw transformeert het oorspronkelijke kantoorgebouw in een complex met meerdere luxeappartementen onder de naam ‘Jans aan de Singel’. Onder het complex bevindt zich een parkeervoorziening. De gevel krijgt een volledig andere architectuur gebaseerd op de onderliggende bestaande constructie. iTX BouwConsult heeft hiervoor een enkelvoudige splitsingstekening opgesteld.

Terug naar uitleg splitsingstekeningen
Vraag offerte aan

De Lofts Amsterdam

2019-11-06_14h34_48.png

In het Amstelkwartier realiseert gebieds- en vastgoedontwikkelaar AM het project de Lofts. De ontwikkelaar beschrijft het project als ‘Betaalbaar duurzaam wonen van hoge kwaliteit midden in de stad’. Achter dit concept zit de zogenaamde community-gedachte. Dit houdt onder meer in dat de bewoners van De Lofts beschikken over gezamenlijke ruimte, zoals een dakterras, een woonkamer, een ‘hotspot’ met werkruimten en een wasserette. Juist met gedeelde eigendommen is een degelijke splitsingstekening van cruciaal belang.

Terug naar uitleg splitsingstekeningen
Vraag offerte aan

Bedrijventerrein Laagraven Nieuwegein

2019-11-06_14h43_46.png

In Nieuwegein ligt het al wat oudere bedrijventerrein Laagraven. Hier vinden we diverse commerciële bedrijven waar onder andere de Makro, de Bouwmaat en de Gamma gevestigd zijn. Voor dit terrein is een overzichtstekening opgesteld waarop de erfgrenzen en bebouwingen in beeld gebracht zijn voor de diverse eigenaren, in opdracht van VvE Metea, eveneens uit Nieuwegein.


Ook een splitsingstekening laten maken? Vraag nu een offerte aan!